SEA SIDE PALACE KOBE
1LDKタイプ残り1部屋になりました♪
| 61,000円〜 | 敷金 |
|---|---|
| 管理費・共益費6,000円 | 礼金15万円 |
兵庫県神戸市中央区脇浜町3丁目
阪神本線「春日野道」駅 徒歩5分
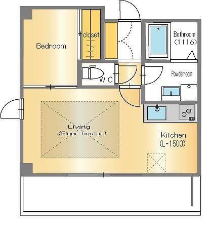
| 専有面積 | 27.47m2 | 間取り | 1LDK |
|---|---|---|---|
| 築年数 | 2015年02月 | 向き | 東 |
阪神本線『春日野道』駅徒歩3分
三ノ宮駅電車の乗車時間・・・2分!!
弊社の管理物件!HATKOBE第2弾!
オシャレな外観で高級感あふれる設備の仕様。
徒歩1分に隣接するブルーメール・病院・コンビニなどなどの周辺施設がたくさんあります!
立地・設備!申し分ありません(*´▽`*)
お急ぎの方はお電話からどうぞ!
tel.0120-16-2108
10:00〜19:00(水曜定休) TEL:06-4866-1238
tel.0120-16-2108
10:00〜19:00(水曜定休) TEL:06-4866-1238
-
間取り詳細 洋室 3帖 、LDK 8帖 学校区 構造 鉄骨造 所在階 8階建て/2階部分 管理番号 3570 駐車場 19,440円(敷地内) 現状・引き渡し 建築中-・相談 取引態様 建物設備
電気 上水道 下水道 都市ガス エレベーター オートロック 駐輪場 インターネット対応 高速インターネット 女性向け 集合ポスト インターネット無料部屋設備
保証人要 専用バス バス・トイレ別 給湯 シャワー 浴室乾燥機 専用トイレ 温水洗浄便座 二口ガスコンロ システムキッチン 洗面化粧台 シャンプードレッサー 室内洗濯機置場 エアコン 冷房 暖房 収納 クローゼット シューズボックス バルコニー フローリング インターホン TV付インターホン 床暖房 独立洗面台







